Maylands Brickworks Reactivation
Background
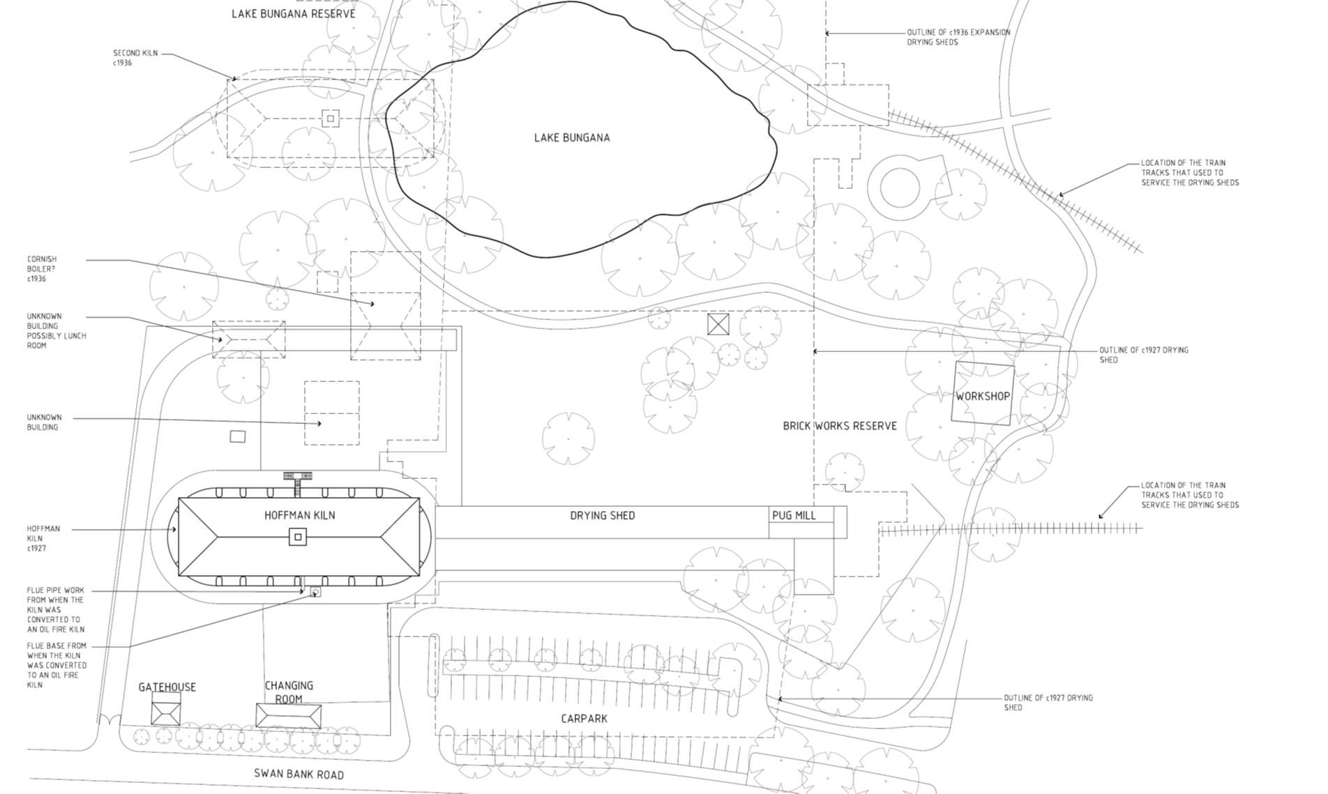
The Maylands Brickworks site is located at 22 Swan Bank Road, Maylands and comprises a number of heritage listed buildings with landscaped surrounds. Established in 1927 it was one of the first industries in the area. The remaining Hoffman kiln is the last of its type in Western Australia, and the brickworks remain an important example of the technology involved in brickmaking, drying and kiln firing.
The brickworks ceased operation in 1983 and has remained vacant since. The site was entered on the State Register of Heritage Places in 1995. Since it closed in 1983, the Maylands Brickworks has been unused and is slowly degrading.
In April 2017 the Heritage Directorate of the DPLH (formerly the State Heritage Office) approached the City with an offer to assist in reactivating the Maylands Brickworks by preparing concept plans and a feasibility study in relation to the enhancement and redevelopment of the site. On 28 May 2019 Council resolved not to support any of the options proposed by the State Government. A link to the 2018 project page is available here.
During previous engagement on the future use of Maylands Brickworks, led by the Department of Planning, Lands and Heritage in 2018, the community made their wishes for the site clear and we have taken all their feedback on board.
The City’s goal now is to arrive at a recommended way forward, to reactive the Maylands Brickworks site, in a way that is financially viable and acceptable to the community.
What has happened so far
In 2021 the City appointed Syme Marmion and Co to prepare a business case that will evaluate the benefit, costs and risks of alternative options to reactivate the Maylands Brickworks site.
Since mid-2021, technical investigations have been undertaken to identify what works are necessary to make the heritage buildings structurally sound, safe and compliant, as well as the level of site contamination and required remediation. An interim report, preliminary site investigation and structural assessment can be reviewed in the Document section.
A range of options have now been developed for various parts of the Maylands Brickworks along with information about how much each option will cost. The options can be viewed here.
The City and its consultants undertook the first stage of community engagement for the project. This included conducting a detailed survey seeking feedback on the options for the different site elements and hosting a pop-up event where the community could ask questions and provide their feedback.
Approximately 150 people participated in the survey. The Engagement Outcomes Report can be viewed here.
We have now completed both the first and the second stages of consultation, which included the establishment of a Community Reference Group.
The role of the Community Reference Group was to consider the feedback from the community, the technical information and options for the site and make a recommendation to the Council about how to best use the Maylands Brickworks.
The Community Reference Group had their first workshop on Saturday 11 June 2022 and the second workshop on 25 June 2022.
Following on from these workshops, the consultants finalised the Engagement Outcomes Report. This included the Community Reference Group’s recommendations to be presented to the Council. The outcomes have been considered in the development of the Maylands Brickworks Reactivation Business Case. The two documents were presented to Council at its Ordinary Council Meeting held on 27th June 2023. The agenda and minutes can be downloaded here. Technical investigations such as engineering reports and detailed maintenance costings can be viewed in the Documents section of this website.
We undertook additional consultation with the Community Reference Group regarding funding options for preservation of the site, which was considered by Council at its Ordinary Council meeting held on 22 August 2023. The agenda and minutes can be downloaded here.
Friends of Maylands Brickworks (FOMB) to consider future land uses and zonings on the site. These were considered at the Ordinary Council Meeting held on 12 December 2023. The agenda and minutes can be downloaded here.
What is happening now
The City has currently engaged a suitably qualified heritage structural consultant to prepare a scope of works for the initial repairs to the Kiln building.
More Information
Frequently asked questions are available here.

